Dubbel bovenhuis in de Leidsebuurt Haarlem te koop
Haarlem
- Home
- UPmakelaars I woningaanbod regio Haarlem en Gooi
- Dubbel bovenhuis in de Leidsebuurt Haarlem te koop
vraagprijs
UP® makelaars Oranjestraat 1, Haarlem

Omschrijving
**Dubbel bovenhuis in de bruisende Leidsebuurt: Jan Nieuwenhuijzenstraat 23-rd, Haarlem** **
!! GOED VERKOCHT door de Leidsebuurt makelaar tijdens onze Pre-Sale!!
Introductie: Stadse levendigheid én rust binnen handbereik** Ben jij op zoek naar een ruim, licht en karakteristiek bovenhuis dichtbij het centrum? Welkom aan de Jan Nieuwenhuijzenstraat 23-rd! Dit dubbele bovenhuis uit 1927 zit vol authentieke details, biedt volop leefruimte en ligt in een opkomende wijk met alles wat je je maar kunt wensen in de buurt. Hier woon je heerlijk rustig, maar loop je zo de stad in voor een koffietje, boodschappen of een borrel met vrienden. Klinkt goed, toch?
**Wonen in de dynamische Leidsebuurt** De Leidsebuurt is, terecht, één van de meest gewilde plekken van Haarlem. Een wijk die volop in beweging is. Hier proef je die gezellige Haarlemse sfeer, terwijl je wél wegblijft van de toeristendrukte. Alles wat je nodig hebt, vind je om de hoek: grote supermarkten, fijne winkels, leuke koffietentjes – én ja, het strand plus de zee zijn binnen een half uurtje fietsen bereikbaar! Ideaal als je houdt van het stadse leven, maar toch graag wilt ontsnappen naar de natuur.
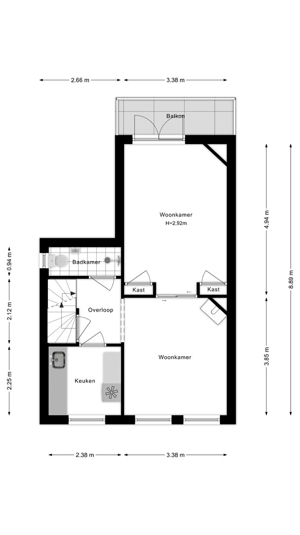
**Ruimte voor het hele gezin – of juist lekker samen** Of je nu als gezin, stel of ouder stel komt kijken: dit appartement voelt meteen als thuiskomen. Dankzij het dubbele bovenhuis beschik je over flink wat ruimte verdeeld over meerdere verdiepingen. Perfect als je kids hun eigen plekje willen, je een werkruimte zoekt, of als je gewoon tot in lengte van dagen wilt genieten van riant wonen. Het jaren '20-karakter zie je direct in de sfeervolle glas-in-loodramen van het suitestel, hoge plafonds én authentieke panelen/deuren.
**Indeling die klopt** We nemen je even mee: via de trap bereik je de woning. De royale woonkamer met balkon op ZO nodigt uit tot lange avonden natafelen, lezen of Netflixen – licht genoeg dankzij de grote ramen en prettig uitzicht over de straat. De authentieke, gesloten keuken geeft jou alle ruimte om je eigen droomkeuken te plaatsen. Aan de overloop vind je ook een douche-, toiletcombinatie. Op de bovenverdieping vind je een meer dan riante slaapkamer, een tweede toilet en een fijne werkkamer.
**Alles binnen handbereik** Je boodschappen haal je gewoon om de hoek – of je nou kiest voor Albert Heijn, Aldi of Dekamarkt. Scholen, kinderopvang, speeltuintjes en sportclubs zijn ook niet ver weg. Geen zin om te koken? In de buurt vind je allerlei restaurantjes. Zin in een dagje strand of even uitwaaien in de duinen? Spring op de fiets en je bent er zo.
**Unieke Punten?!**
UP! Authentieke jaren ’20 details, volop licht en ruimte
UP! Balkon ZO
UP! Lange tijd dubbel bewoond geweest
UP! Vaste trap naar het dak
UP! Mogelijkheden te over qua indeling
UP! Ga voor jouw eigen droomkeuken