Faisantenstraat 3
Hilversum
- Home
- UPmakelaars I woningaanbod regio Haarlem en Gooi
- Faisantenstraat 3

Omschrijving
Op zoek naar een gerenoveerde, moderne en verduurzaamde woning uit 1899 van ca 114 m² (woning + bijgebouw) met energielabel A+++ in een geliefde buurt in Hilversum? Zoek dan niet verder en bel ons voor een bezichtigingsafspraak!
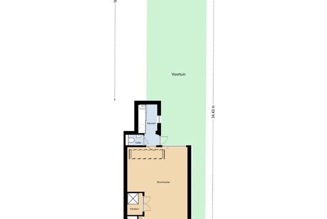
In de rustige en geliefde woonwijk "Klein Rome", maar op loopafstand van het NS station en het centrum van Hilversum gelegen geheel gemoderniseerde en verduurzaamde twee onder een kapwoning. Dit huis heeft een zonnige, diepe achtertuin met een achterom en ruim bijgebouw.
Indeling
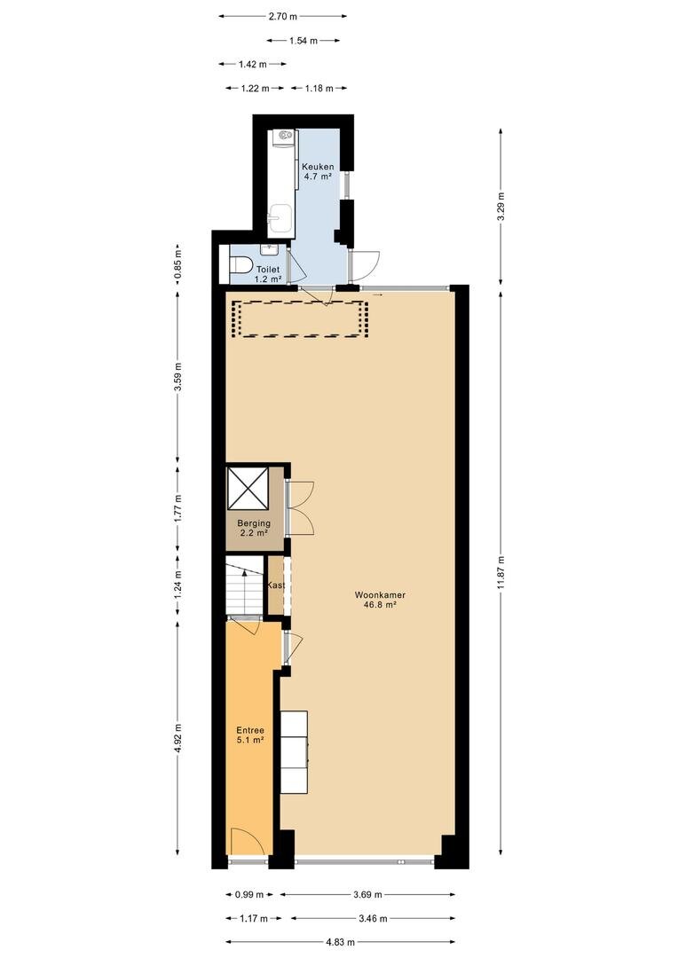
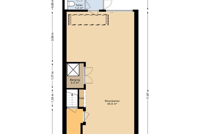
Begane grond: Entree, hal met trap naar de 1e verdieping, ruime woonkamer met aan de voorzijde de moderne keuken met groot spoel-en kookeiland en voorzien van alle moderne apparatuur zoals een quooker, vaatwasmachine, oven, combi magnetron/oven, ijskast, vriezer en keramische kookplaat met afzuiging. In het midden is het gezellige eetgedeelte en toegang tot de sta hoge en droge kelder. Aan de achterzijde is de woning uitgebouwd waardoor er een royale zitkamer is met een robuuste houtkachel en schuifpui naar de tuin en veel licht door de fraaie lichtstraat. Via de woonkamer geeft een moderne stalen deur toegang tot de bijkeuken met de achterdeur en het moderne separate toilet, de wasmachine en droger aansluiting en de technische ruimte met de CV-opsteling.
De gehele begane grond is voorzien van comfortabele vloerverwarming.
Verdieping: Overloop, deur naar dak (met mogelijkheid tot uitbreiding), de moderne badkamer welke voorzien is van vloerverwarming, een inloopdouche, ruim bad, 2e wc en moderne waskommen. Aan de voorzijde zijn 2 ruime slaapkamers.
Via de overloop is m.b.v. een vlizo trap de verrassend ruime vliering te bereiken.
Achterin de zonnige tuin is een geïsoleerd en van elektriciteit en verwarmingspaneel voorzien ruim bijgebouw. Heerlijk om te kunnen gebruiken als bijvoorbeeld kantoor aan huis.
De tuin is voorzien van meerdere terrassen en fraai aangelegd.
Het huis is gelegen in een rustige straat en op loopafstand van het centrum met winkels, restaurants en zowel station Hilversum Centraal als station Hilversum Sportpark. Alle faciliteiten zijn binnen handbereik, waaronder leuke horeca, een filmtheater en bioscoop, de markt en vele winkels. Ook scholen, kinderopvang, sportclubs en medische voorzieningen zijn nabij. Met de auto bereikt u binnen 10 minuten de snelwegen A1, A27 of de N201. Zowel met eigen als openbaar vervoer zijn o.a. Amsterdam, Schiphol en Utrecht dus snel en makkelijk bereikbaar.
Bijzonderheden:
• Energielabel A+++;
• Gerenoveerd met nieuwe elektra, riool, smart verlichting, geïsoleerde muren, vloer, dak, hybride warmtepomp, 16 zonnepanelen, Ramen HR++, etc.;
• Voor de uitbreiding van de verdieping zijn tekeningen en een constructieve berekening aanwezig;
• Woonoppervlakte woonhuis ca 103 m², bijgebouw ca 11 m².
Vraagprijs: € 700.000,- k.k.
Oplevering in overleg
Heeft u interesse in deze woning? Maak dan een afspraak via UP makelaars Gooi 035-5339057
In de rustige en geliefde woonwijk "Klein Rome", maar op loopafstand van het NS station en het centrum van Hilversum gelegen geheel gemoderniseerde en verduurzaamde twee onder een kapwoning. Dit huis heeft een zonnige, diepe achtertuin met een achterom en ruim bijgebouw.
Indeling
Begane grond: Entree, hal met trap naar de 1e verdieping, ruime woonkamer met aan de voorzijde de moderne keuken met groot spoel-en kookeiland en voorzien van alle moderne apparatuur zoals een quooker, vaatwasmachine, oven, combi magnetron/oven, ijskast, vriezer en keramische kookplaat met afzuiging. In het midden is het gezellige eetgedeelte en toegang tot de sta hoge en droge kelder. Aan de achterzijde is de woning uitgebouwd waardoor er een royale zitkamer is met een robuuste houtkachel en schuifpui naar de tuin en veel licht door de fraaie lichtstraat. Via de woonkamer geeft een moderne stalen deur toegang tot de bijkeuken met de achterdeur en het moderne separate toilet, de wasmachine en droger aansluiting en de technische ruimte met de CV-opsteling.
De gehele begane grond is voorzien van comfortabele vloerverwarming.
Verdieping: Overloop, deur naar dak (met mogelijkheid tot uitbreiding), de moderne badkamer welke voorzien is van vloerverwarming, een inloopdouche, ruim bad, 2e wc en moderne waskommen. Aan de voorzijde zijn 2 ruime slaapkamers.
Via de overloop is m.b.v. een vlizo trap de verrassend ruime vliering te bereiken.
Achterin de zonnige tuin is een geïsoleerd en van elektriciteit en verwarmingspaneel voorzien ruim bijgebouw. Heerlijk om te kunnen gebruiken als bijvoorbeeld kantoor aan huis.
De tuin is voorzien van meerdere terrassen en fraai aangelegd.
Het huis is gelegen in een rustige straat en op loopafstand van het centrum met winkels, restaurants en zowel station Hilversum Centraal als station Hilversum Sportpark. Alle faciliteiten zijn binnen handbereik, waaronder leuke horeca, een filmtheater en bioscoop, de markt en vele winkels. Ook scholen, kinderopvang, sportclubs en medische voorzieningen zijn nabij. Met de auto bereikt u binnen 10 minuten de snelwegen A1, A27 of de N201. Zowel met eigen als openbaar vervoer zijn o.a. Amsterdam, Schiphol en Utrecht dus snel en makkelijk bereikbaar.
Bijzonderheden:
• Energielabel A+++;
• Gerenoveerd met nieuwe elektra, riool, smart verlichting, geïsoleerde muren, vloer, dak, hybride warmtepomp, 16 zonnepanelen, Ramen HR++, etc.;
• Voor de uitbreiding van de verdieping zijn tekeningen en een constructieve berekening aanwezig;
• Woonoppervlakte woonhuis ca 103 m², bijgebouw ca 11 m².
Vraagprijs: € 700.000,- k.k.
Oplevering in overleg
Heeft u interesse in deze woning? Maak dan een afspraak via UP makelaars Gooi 035-5339057
Refresh to make it work.