Twee onder een kap woning met garage te koop in Heemstede via UP makelaars
Heemstede
- Home
- UPmakelaars I woningaanbod regio Haarlem en Gooi
- Twee onder een kap woning met garage te koop in Heemstede via UP makelaars

Omschrijving
Sfeervolle twee-onder-een-kapwoning met garage in geliefd Heemstede.
Welkom aan de Johan Wagenaarlaan 15 – een charmante twee-onder-een-kapwoning met veel licht, ruimte een fijne diepe tuinen een garage. Hier woon je rustig, maar toch dichtbij alle voorzieningen die Heemstede zo geliefd maken.
Waarom je hier wilt wonen:
Gelegen in een groene laan
Op korte afstand van gezellige winkelstraten zoals de Binnenweg en Jan van Goyenstraat
Nabij uitstekende scholen, sportverenigingen en speeltuinen – ideaal voor gezinnen
Binnen enkele minuten in Haarlem en op fietsafstand van het strand en de duinen
Goede verbindingen naar Amsterdam, Schiphol en Den Haag
De woning zelf biedt:
Een lichte woonkamer met grote ramen en een prettige indeling
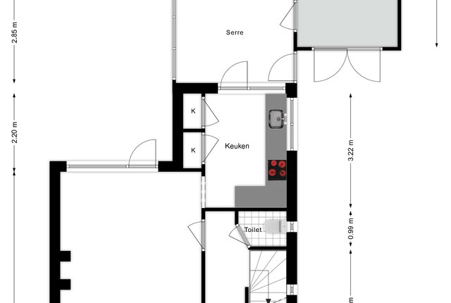
Een ruime keuken met toegang tot de tuin
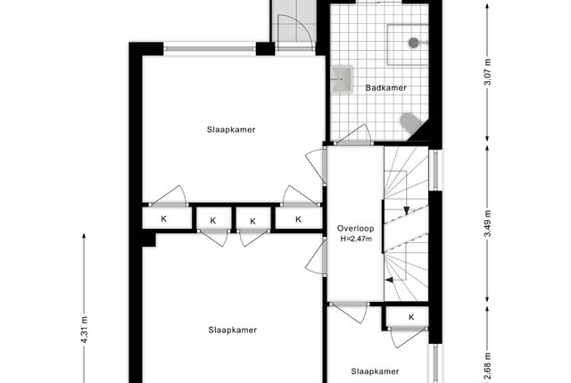
Meerdere slaapkamers, ideaal voor een gezin of thuiswerken
Een fijne voor- en achtertuin met volop privacy en groen
Parkeren op eigen terrein voor meerdere auto's