Dubbel bovenhuis met balkon (Z) te koop in Haarlem, rand centrum
Haarlem
- Home
- UPmakelaars I woningaanbod regio Haarlem en Gooi
- Dubbel bovenhuis met balkon (Z) te koop in Haarlem, rand centrum
vraagprijs
UP® makelaars Oranjestraat 1, Haarlem

Omschrijving
As Expat broker we provide English in the English section and in the text below.
= > = > = > = > PRE SALE < = < = < = < =
= > = > = > = > GRAAG VIA FUNDA EEN BEZICHTIGING AANVRAGEN << = < = < = < =
Ja, je leest het goed. Pre sale.... En de eerste afspraken staan al in de agenda.
Wij dachten dat jij het leuk zou vinden om nu al te weten dat deze bovenwoning op de markt komt/staat. Maar voor jou nog belangrijker, je kunt nu al een afspraak maken. Als jij denkt locatie, locatie, locatie in combinatie met een prachtige gevel, een ruim balkon op het zuiden én een casco wat jij helemaal naar smaak kunt inrichten, dan is het toch niet erg dat er geen foto's van de binnenkant zijn en dat de meetstaat en de plattegronden nog komen.
JIJ WILT DIT HUIS !!
Volg de website van de makelaar voor de steeds verder vullende informatie.
Wil jij op een TOP PLEK wonen, tegen het CENTRUM van HAARLEM, achter een prachtige karakeristieke gevel?! En wil je zelf kunnen bepalen hoe jouw woning wordt ingedeeld en hoe deze wordt geïsoleerd? DAN IS DIT JOUW KANS!!
Deze woning bestond uit 2 apart bewoonde appartementen met een energielabel D. Toen de woningen leeg kwamen is de indeling verwijderd en eigenlijk zijn alleen de fraaie elementen bewaard gebleven. Zo vind je er een originele schouw, een ornamenten plafond, een suitestel en meerdere originele deuren. Ook de trap is prachtig bewerkt. Het royale balkon ligt op het zuiden. En ja, misschien ga je wel een groot terras op het hoofddak realiseren. In de splitsingsakte is het recht op toegang en gebruik van dak al vastgelegd.
Kortom jij kunt hier een paleis van maken.
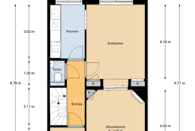
Om je een idee te geven van de indelingsmogelijkheden, hebben wij een paar schetsjes toegevoegd met 3 of zelfs 4 slaapkamers. Natuurlijk zijn deze slechts ideeën. Jij bepaalt wat en hoe jij het maakt.
**Unieke Punten?!**
UP! Prachtige gevel
UP! Rand centrum
UP! Groot balkon zuid
UP! Zelf in te delen
UP! Naar eigen wensen te isoleren
UP! Maar € 100,- servicekosten per maand
Wij nodigen je graag uit om te komen kijken en jezelf te verwonderen.
= > = > = > = > PRE SALE < = < = < = < =
= > = > = > = > PLEASE REQUEST A VIEWING VIA FUNDA << = < = < = < =
Yes, you read that correctly. Pre-sale... And the first appointments are already in the diary.
We thought you would like to know that this upstairs apartment is coming onto the market/is already on the market. But even more importantly for you, you can already make an appointment. If you believe in location, location, location, combined with a beautiful facade, a spacious south-facing balcony, and a shell that you can decorate entirely to your taste, then it doesn't matter that there are no photos of the interior and that the measurements and floor plans are still to come.
YOU WANT THIS HOUSE!!
Follow the real estate agent's website for more information as it becomes available.
Do you want to live in a TOP LOCATION, near the CENTER of HAARLEM, behind a beautiful, characteristic facade?! And do you want to be able to decide for yourself how your home is laid out and how it is insulated? THEN THIS IS YOUR CHANCE!!
This property consisted of two separately occupied apartments with an energy label D. When the properties were vacated, the layout was removed and only the beautiful elements were preserved. You will find an original fireplace, an ornamental ceiling, a suite set, and several original doors. The staircase is also beautifully crafted. The spacious balcony faces south. And yes, you might even build a large terrace on the main roof. The right of access and use of the roof is already laid down in the deed of division.
In short, you can turn this into a palace.
To give you an idea of the layout options, we have added a few sketches with 3 or even 4 bedrooms. Of course, these are just ideas. You decide what and how you want to do it.
**Ultimate Property?!**
UP! Beautiful facade
UP! Edge of town center
UP! Large south-facing balcony
UP! Customizable layout
UP! Insulation according to your preferences
UP! Only €100 service charges per month
We would like to invite you to come and see for yourself and be amazed.