Pim Jacobsstraat 8
Hilversum
- Home
- UPmakelaars I woningaanbod regio Haarlem en Gooi
- Pim Jacobsstraat 8
vraagprijs
€ 1.225.000 Kosten koper
UP makelaars Gooi Fransepad 7, Blaricum

Omschrijving
Gelegen in de nieuwe en groene wijk Anna’s Hoeve op loopafstand van een basisschool, bos en heide, sportverenigingen, winkels en uitvalswegen staat deze luxe afgewerkte en goed ingedeelde duurzame nieuwere villa uit 2015.
De villa is gelegen aan een rustig karakteristiek straatje met gevarieerde villa bebouwing.
Deze duurzame en moderne villa beschikt over maar liefst 172 m² aan woonoppervlakte en is van alle gemakken voorzien. De woning is in 2015 gebouwd, voorzien van alle mogelijk denkbare smart bedieningen (verwarming per vertrek regelbaar, verlichting, gordijnen, airco, koffiezetapparaat, teveel om op te noemen) en klaar voor de toekomst door de aanwezigheid van 17 zonnepanelen, lucht-lucht warmtepomp (airco t.b.v. koeling) en volledige isolatie. Een woning waar u werkelijk niets meer aan hoeft te doen. U moet enkel uw spullen uitpakken zodra de verhuizers weg zijn!
Indeling:
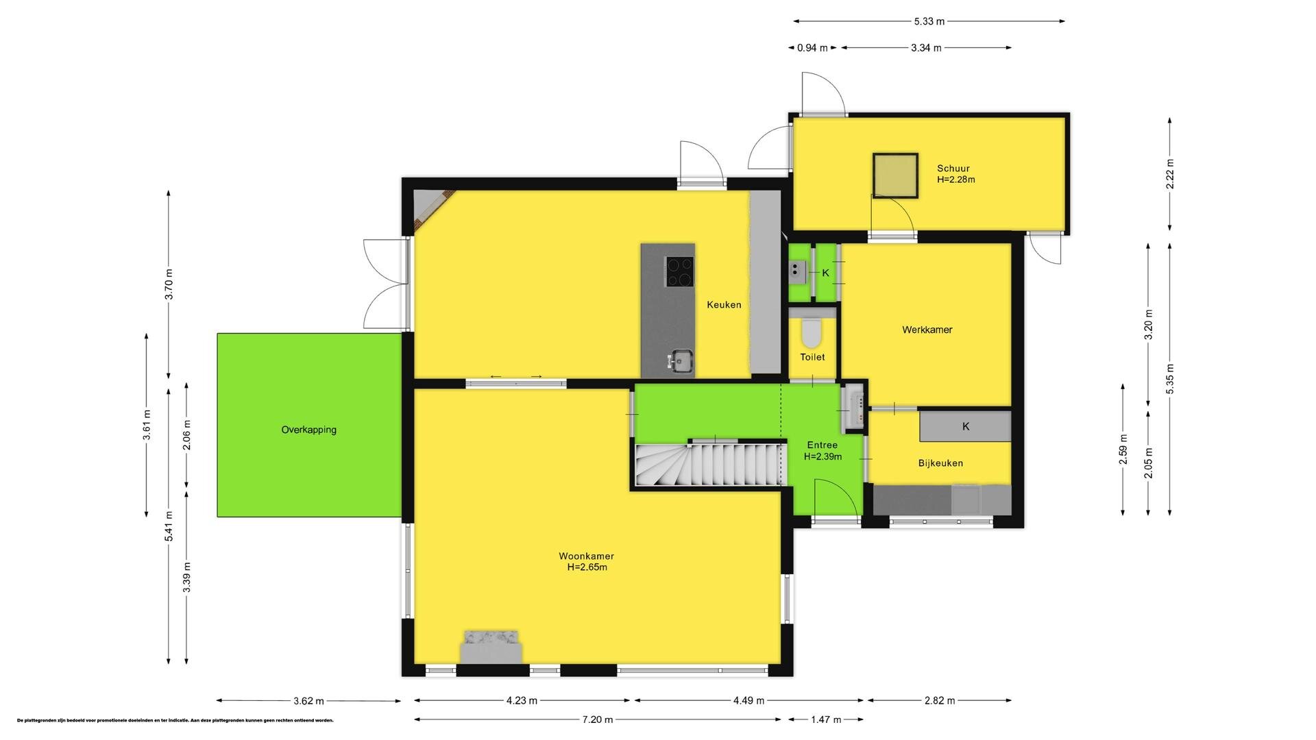
Begane grond: entree, ruime hal, waskamer met inbouwkasten, studeer-/slaapkamer met deur naar berging, uitgebreide meterkast, toilet met fonteintje, vernuftige bergkast en zitje met garderobe onder de trap, royale lichte en zonnige woonkamer voorzien van open haard, schuifdeuren met glas-in-lood naar de keuken, royale woonkeuken voorzien van gashaard, spoel- en kookeiland met hardstenen aanrechtblad, inbouwapparatuur waaronder een vriezer, vaatwasser, koffiezetapparaat en Quooker met bruiswaterfunctie. De openslaande deuren naar de zonnige tuin maken de keuken in de zomer een verlengde van de tuin.
Eerste verdieping: overloop, grote ouderslaapkamer voorzien van drie dakramen en inbouwkasten, 2e ruime slaapkamer met inloopkast, badkamer voorzien van inloopdouche, wc, ligbad en wastafelmeubel, trapkast, 3e ruime slaapkamer met studeerhoek/inloopkast.
Tweede verdieping met de 5e slaapkamer voorzien van 4 dakramen en een bergkast met hierin de WTW unit.
In de tuin is een sfeervolle veranda met buitenhaard, een extra houten schuur en 2 terrassen waar volop genoten kan worden van het buiten zijn.
Bijzonderheden:
• Energielabel A++;
• 17 zonnepanelen, triple beglazing, alle kamers voorzien van airco, etc.;
• De begane grond is voorzien van vloerverwarming en keramisch parket;
• Oprit voor 2 auto’s;
• Zie de brochure voor een uitgebreide uiteenzetting van onderhoud, omgeving, smart toepassingen, duurzaamheid, etc.
Oplevering in overleg
De villa is gelegen aan een rustig karakteristiek straatje met gevarieerde villa bebouwing.
Deze duurzame en moderne villa beschikt over maar liefst 172 m² aan woonoppervlakte en is van alle gemakken voorzien. De woning is in 2015 gebouwd, voorzien van alle mogelijk denkbare smart bedieningen (verwarming per vertrek regelbaar, verlichting, gordijnen, airco, koffiezetapparaat, teveel om op te noemen) en klaar voor de toekomst door de aanwezigheid van 17 zonnepanelen, lucht-lucht warmtepomp (airco t.b.v. koeling) en volledige isolatie. Een woning waar u werkelijk niets meer aan hoeft te doen. U moet enkel uw spullen uitpakken zodra de verhuizers weg zijn!
Indeling:
Begane grond: entree, ruime hal, waskamer met inbouwkasten, studeer-/slaapkamer met deur naar berging, uitgebreide meterkast, toilet met fonteintje, vernuftige bergkast en zitje met garderobe onder de trap, royale lichte en zonnige woonkamer voorzien van open haard, schuifdeuren met glas-in-lood naar de keuken, royale woonkeuken voorzien van gashaard, spoel- en kookeiland met hardstenen aanrechtblad, inbouwapparatuur waaronder een vriezer, vaatwasser, koffiezetapparaat en Quooker met bruiswaterfunctie. De openslaande deuren naar de zonnige tuin maken de keuken in de zomer een verlengde van de tuin.
Eerste verdieping: overloop, grote ouderslaapkamer voorzien van drie dakramen en inbouwkasten, 2e ruime slaapkamer met inloopkast, badkamer voorzien van inloopdouche, wc, ligbad en wastafelmeubel, trapkast, 3e ruime slaapkamer met studeerhoek/inloopkast.
Tweede verdieping met de 5e slaapkamer voorzien van 4 dakramen en een bergkast met hierin de WTW unit.
In de tuin is een sfeervolle veranda met buitenhaard, een extra houten schuur en 2 terrassen waar volop genoten kan worden van het buiten zijn.
Bijzonderheden:
• Energielabel A++;
• 17 zonnepanelen, triple beglazing, alle kamers voorzien van airco, etc.;
• De begane grond is voorzien van vloerverwarming en keramisch parket;
• Oprit voor 2 auto’s;
• Zie de brochure voor een uitgebreide uiteenzetting van onderhoud, omgeving, smart toepassingen, duurzaamheid, etc.
Oplevering in overleg
Refresh to make it work.